ZP 03 Hängendes Urinalbecken aus Edelstahl mit zentralem Abfluss
ZP 03 sind Urinalrinnen aus Edelstahl in verschiedenen Breiten, die für Sanitäranlagen mit erhöhtem Beschädigungsrisiko konzipiert sind. ZP 03 ist eine andere Variante, die ebenfalls erhältlich ist. Zur Standardausstattung gehören eine Wasserverteilung und robuste, vandalensichere Edelstahldüsen. Für die Spülung der Rinne wird eine zeitgesteuerte Spülung empfohlen. COS Nein, die Spülung kann auch mit einer anderen Art erfolgen – Sie werden den Unterschied bemerken.
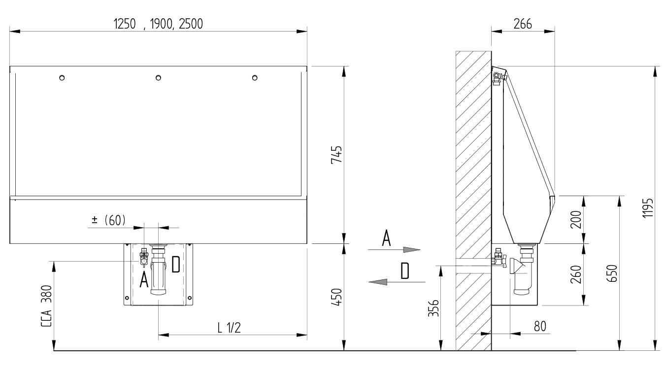
Die Rinnen werden in drei Standardbreiten gefertigt. Die maximale Wandstärke beträgt 2500 mm. Die Rinne ist mit einem mittig angeordneten Abfluss ausgestattet. Der Abflusssiphon ist durch eine Krypta geschützt.
Das verwendete Material ist ČSN 17240 (AISI 304) mit einer Wandstärke von 1,5 mm.
Vollständige Lieferung
- Edelstahlwanne mit Spül- und Wasserzufuhr
- Siphon
- Siphonabdeckung aus Edelstahl
- Kleinmontagematerial
| Wassereinlass | G 1/2“ Innengewinde |
| Abflussöffnung | 50 mm + Extrusion (für 6/4 "-Abfluss) |
| Gewicht | je nach Typ : 29 kg; 38,5 kg; 47,5 kg |
| Blechdicke | 1,5 mm |
| Materiall | ČSN 17 240, AISI 304 |
- Die Wasserversorgung wurde gemäß dem Diagramm vorbereitet.
- Abfall d = 50 mm vorbereitet.

- A – Wasserversorgung
- D – Abwasser
